24' Mobile Dishwashing Unit 24-037
24' Dishwashing Trailer
Unit #: 24-037

Compact, efficient, and ready to support your foodservice operation, our 24' Dishwashing Trailer (unit 24-037) is ideal for kitchens with moderate dish volume or limited space. Despite its smaller footprint, this unit is fully equipped for fast, hygienic cleaning.
Key Features
This mobile dishwashing trailer comes with a Hobart EDL-1 Door-Type Dishwasher, a reliable, high-efficiency unit designed for consistent wash performance with fast cycle times. Other features include:
- Spacious Clean Table
- Rinse Sink and Hand Sink
- 3 Basin Sink
- Wire Shelving
- Onboard Water Heater
- Stainless Steel Construction
Available for short-term or long-term rental, or for purchase.
|
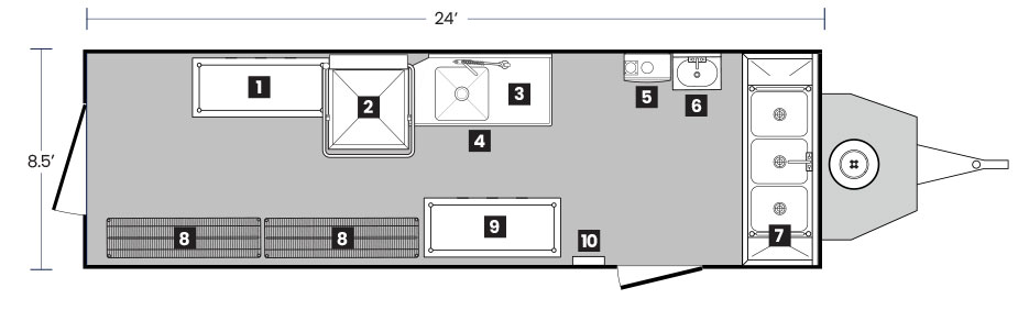
Layout
Legend
- Clean Table
- Hobart EDL-1 Dishwasher
- Rinse Sink
- Disposal
- Electrical Panel
- Water Heater
- Hand Sink
- 3 Basin Sink
- Table w/Shelves
- Wire Shelving Rack
- HVAC
Not Shown:
- Lights
- Electric Brakes & Heavy Duty Suspension
- Extra 120 Volt 20 Amp Outlets
- White Aluminum Walls
- Aluminum Diamond Plate Floor
- Fire Extinguisher
Utility Connections
- Electrical: 200 Amps 208 Volt Three Phase
- Supply Water: Standard Hose Bib Connection
- Propane Gas: (1) On-board 100lb Tank
- Waste: 4” PVC Connection
Featured 24' Mobile Dishwashing Unit 24-037 Images
NOTE: SOME LAYOUTS VARY FROM TRAILER TO TRAILER. MEASUREMENTS ARE NOMINAL.
This drawing is the property of U.S. Mobile Kitchens. All ideas, designs, arrangements, graphic techniques and plans indicated by this drawing are owned by and the property of U.S. Mobile Kitchens, and were developed for our sole use or in connection with this specific project. None of the ideas, designs or plans shall be used by or disclosed to any person, firm or corporation for any purpose whatsoever without U.S. Mobile Kitchens written permission.
*Most READY NOW units ship as configured within two (2) business days. Due to high demand, a confirmed order is required to hold units.