28' Mobile Kitchen Trailer

Unit #: 28-029

28' mobile kitchen trailer (unit 28-029) delivers appliances, support equipment and concession window to meet your food service needs.

Your mobile kitchen comes complete with on-site set-up, support and removal services. Short-term and long-term, cost-effective rentals and leasing options are available.

Layout

Interior Layout
Interior Layout
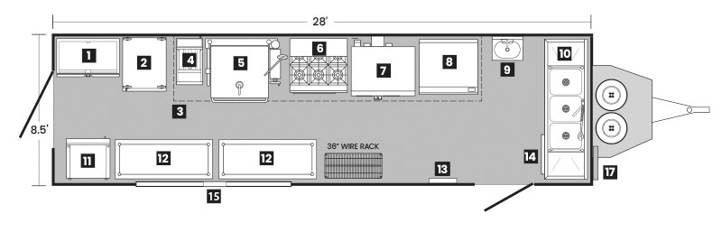
Floor Plan

Legend

  1. 2 Door Cooler
  2. Warming Cabinet
  3. Exhaust Hood
  4. 40 Lb. Fryer
  5. Tilt Skillet
  6. Six Burner Range w/ Oven
  7. Double Convection Oven
  8. 36" Flattop Griddle
  9. Hand Sink
  1. 3 Basin Sink
  2. Freezer
  3. Stainless Steel Table w/ Under Shelves
  4. 100Amp Panel
  5. Under Counter Dishwasher
  6. Concession Window
  7. HVAC Unit
  8. 400Amp Panel
      Not Shown:
  • Lights
  • On-Demand Water Heater
  • Electric Brakes & Heavy Duty Suspension
  • Extra 120 Volt 20 Amp Outlets
  • Aluminum Walls
  • Aluminum Diamond Plate Floor
  • Fire Suppression System
  • Ceiling Mounted Space Heater
 

Utility Connections

  • Electrical: 100 Amps 220 Volt Single Phase
  • Supply Water: Standard Hose Bib Connection
  • Gray water: 4" PVC Fernco Connection
  • Propane Gas: Approx. 750,000 Btuh of Connected Equipment

Featured 28' Mobile Kitchen Trailer 28-029 Images



NOTE: SOME LAYOUTS VARY FROM TRAILER TO TRAILER. MEASUREMENTS ARE NOMINAL.

This drawing is the property of U.S. Mobile Kitchens. All ideas, designs, arrangements, graphic techniques and plans indicated by this drawing are owned by and the property of U.S. Mobile Kitchens, and were developed for our sole use or in connection with this specific project. None of the ideas, designs or plans shall be used by or disclosed to any person, firm or corporation for any purpose whatsoever without U.S. Mobile Kitchens written permission.


28' Mobile Kitchen Trailer

One-Step Inquiry

 
Contact Information
 
Delivery Location
 
or
 
ReadyNow:[
]Unit:[
]Subject: